PK 1350 TEC
- Gross vehicle weight of 32 t – fully equipped with 2500 to 3000 kg payload capacity (four-axle truck)
- Gross vehicle weight of 40 t – fully equipped with 8000 kg payload capacity (five-axle truck)
- High mobility due to the mounting on standard truck chassis
- Very stiff and light boom system thanks to P-Profile
- More intelligent operation with PALTRONIC 180 control electronics
- Extra smooth control thanks to LX-6 control valve
- Additional applications with Power Link Plus
- More efficiency with fly-jib due to DPS-C
- Maximum utilisation of the working range thanks to extended HPSC
- Increased comfort and safety due to Soft Stop
- Practical and attractive due to Functional Design
Technical data
| Max. lifting moment | 109,3 mt |
|---|---|
| Max. lifting capacity | 30000 kg |
| Max. hydraulic outreach | 21,9 m |
| Max. manual outreach | 38,7 m |
| Slewing angle | ∞ |
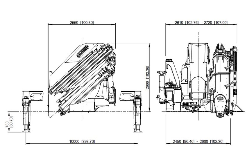
| Stabiliser spread (std) | 10.0 m |
| Fitting space required (std) | 2,55 m |
| Max. operating pressure | 385 bar |
| Pump capacity | 2x 100 - 130 l/m |
| Weight | 10170 kg |
| Slewing torque with 2 gears | 10,6 mt |
Technical data
| Lifting moment | Outreach | Slewing angle | Slewing torque | Pressure | Pump capacity | Crane weight | Crane height | Crane width | Installation width | Max stroke length | Max. lifting capacity | Load vertical | |
|---|---|---|---|---|---|---|---|---|---|---|---|---|---|
| C | 105.0 mt | 10.8 m | ∞ ° | 10.6 mt | 38.5 Mpa | 2x 100 - 130 l/min | 10170 kg | 2600 mm | 2550 mm | 2450 mm | 10600 mm | - | 9900 kg |
| E | 101.6 mt | 15.0 m | ∞ ° | 10.6 mt | 38.5 Mpa | 2x 100 - 130 l/min | 10930 kg | 2600 mm | 2550 mm | 2540 mm | 14800 mm | - | 6600 kg |
| F | 100.7 mt | 17.2 m | ∞ ° | 10.6 mt | 38.5 Mpa | 2x 100 - 130 l/min | 11250 kg | 2600 mm | 2550 mm | 2600 mm | 17100 mm | - | 5400 kg |
| G | 99.0 mt | 19.6 m | ∞ ° | 10.6 mt | 38.5 Mpa | 2x 100 - 130 l/min | 11530 kg | 2600 mm | 2550 mm | 2600 mm | 19400 mm | - | 4500 kg |
| H | 99.2 mt | 22.0 m | ∞ ° | 10.6 mt | 38.5 Mpa | 2x 100 - 130 l/min | 11780 kg | 2600 mm | 2550 mm | 2600 mm | 21900 mm | - | 3800 kg |