PK 22002 AH High Performance
Technical data
| Max. lifting moment | 20,9 mt |
|---|---|
| Max. lifting capacity | 6100 kg |
| Max. hydraulic outreach | 17,1 m |
| Slewing angle | 400° |
| Stabiliser spread (std) | 5.0 m |
| Max. operating pressure | 350 bar |
| Pump capacity | 65 - 90 l/m |
| Weight | 2900 kg |
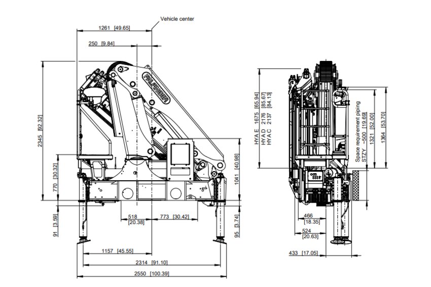
Technical data
| Lifting moment | Outreach | Slewing angle | Slewing torque | Pressure | Pump capacity | Crane weight | Crane height | Crane width | Installation width | Max stroke length | Max. lifting capacity | Load vertical | |
|---|---|---|---|---|---|---|---|---|---|---|---|---|---|
| C | 19.3 mt | 12.6 m | 400 ° | 2.3 mt | 35.0 Mpa | 65-90 l/min | 2694 kg | 2330 mm | 2550 mm | 975 mm | 12460.01 mm | 5800 kg | 1380 kg |
| D | 19.0 mt | 14.9 m | 400 ° | 2.3 mt | 35.0 Mpa | 65-90 l/min | 2818 kg | 2330 mm | 2550 mm | 1015 mm | 14690.01 mm | 5700 kg | 1080 kg |
| E | 18.7 mt | 17.1 m | 400 ° | 2.3 mt | 35.0 Mpa | 65-90 l/min | 2935 kg | 2330 mm | 2550 mm | 1015 mm | 16920.01 mm | 5600 kg | 830 kg |
Back to overview
Medium loader cranes
Model
PK 22002 AH High Performance
Brand